ПРОЕКТ    ЖИЛОГО  ДОМА  В  РЕСПУБЛИКЕ  ТАТАРСТАН  (2020 г.)  

Архитектор:  Шернин М.Д.

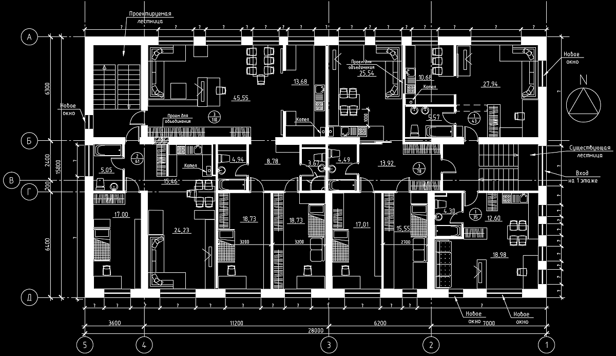
Существующее, двухэтажное здание кафе, требовалось реконструировать. На первом этаже разместить СПА комплекс. На втором и третьем этажах запроектировать квартиры. Стены существующей постройки кирпичные, перекрытия монолитные.

Проект предлагает произвести перепланировки этажей, практически не затрагивая несущие стены. Оконные проемы увеличить за счет подоконного пространства, тем самым получив больше света во внутренних помещениях здания. Третий этаж надстроить и выполнить из дерева, для облегчения нагрузки на существующий фундамент.



ТЕХНИКО-ЭКОНОМИЧЕСКИЕ ПОКАЗАТЕЛИ:

Площадь застройки - 440 кв.м.

Количество одновременно обслуживаемых групп людей (семей) в СПА - 2

Количество квартир - 10 шт.

В том числе:

1 комн. - 4 шт.

2 комн. - 2 шт.

3 комн. - 4 шт.

 

 

  Проект многоквартирного жилого дома (2020г.)

 

 

Проект многоквартирного жилого дома (2020г.)

 

 

Проект многоквартирного жилого дома (2020г.)

 

 

Проект многоквартирного жилого дома (2020г.)

   

 

 

Проект многоквартирного жилого дома (2020г.)

Фасад со стороны улицы

 

Проект многоквартирного жилого дома (2020г.)

Фасад со стороны двора

 

 

 

 

 

 

 

 

Проект многоквартирного жилого дома (2020г.)

Торцевой фасад

 

Существующее положение

Проект многоквартирного жилого дома (2020г.)

Торцевой фасад

 

 

Существующее положение

 

 

Проект многоквартирного жилого дома (2020г.)

План 1 этажа

 

Проект многоквартирного жилого дома (2020г.)

План 2 и 3 этажа

 

 

 

 

 

 

 

 


 

 

 
 
   
   



 

 

Проект виллы, коттедж, малоэтажный дом, таунхаусы, проект таунхаусов, проект поселка, проект дома, проект усадьбы, поселок, проектирование поселков, проектирование коттеджных поселков, малоэтажное проектирование, проектирование загородных домов, проектирование загородного жилья, проект рабочий, эскизный проект, архитектурный проект коттеджа, архитектурный проект поселка, архитектурный проект таунхауса, архитектурный проект офисного здания, архитектурный проект жилого дома, архитектурный проект виллы, проект мини гостиницы, проект гостиницы, проект микрорайона, проект многофункционального комплекса.

 

 

 

 

 

 

 

НА ГЛАВНУЮ СТРАНИЦУ