ПРОЕКТ  ЗАСТРОЙКИ  УЧАСТКА  ТАУНХАУСАМИ В САРАТОВСКОЙ ОБЛАСТИ  (2019 г.)  

Архитектор:  Шернин М.Д.

ПОЯСНИТЕЛЬНАЯ ЗАПИСКА

В рамках согласованной концепции предлагается в границах землеотвода возвести группу жилых блоков, предназначенных для постоянного проживания. Участок расположен в составе загородного поселка в Саратовской области.  Рельеф участка ровный, уклон незначительный . Результаты инженерно-геологических изысканий свидетельствуют о пригодности участка для строительства проектируемого объекта. Проектом предлагается единовременное освоение данной территории .

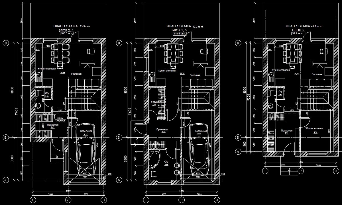
АРХИТЕКТУРНО-ПЛАНИРОВОЧНЫЕ РЕШЕНИЯ . Каждый жилой блок имеет отдельный вход, собственную котельную и собственный участок придомовой территории, где запроектирована терраса. Предусмотрено два машиноместа на каждый блок, кроме этого, в блоках 1, 2, 4, 5 запроектированы гаражи.
На первом этаже каждого блока расположены следующие помещения: Гостиная, кухня - столовая с выходом на террасу, санузел гостевой, просторная прихожая, гараж (в блоке 3 это жилая комната), гардеробная комната . На втором этаже запроектированы три или четыре жилые комнаты, отдельная гардеробная, ванная комната. Перекрытия над 2 этажом горизонтальные, утепленные. Соответственно запроектирован холодный чердак, который служит дополнительным местом хранения.

КОНСТРУКТИВНЫЕ РЕШЕНИЯ
 Здание предполагается возвести на сборном (ФБС) , фундаменте с перекрытиями из сборных плит. Внешние стены выполнить от крупноразмерных блоков газобетона 400мм. Что позволит нам не применять многослойные стены в качестве наружного ограждения. Высота первого этажа составляет 2900 мм., второй этаж - 2700мм (в чистоте).

 

       т    ТЕХНИКО-ЭКОНОМИЧЕСКИЕ ПОКАЗАТЕЛИ:

Площадь участка - 0,988 га.

Площадь застройки – 443  кв.м.
(Включая крыльцо и террасу)

Общая площадь здания – 530.4 кв.м.
В том числе:
БЛОК 1 - 118,5 кв.м.
БЛОК 2 – 100,5 кв.м
БЛОК 3 - 92,4 кв.м.
БЛОК 4 – 100,5 кв.м
БЛОК 5 - 118,5 кв.м.

Строительный объем здания –550 куб.м.

Количество машиномест - 2 шт. на каждый блок. Блоки 1, 2, 4, 5 - оборудованы отапливаемым гаражом.



Проект таунхаусов эконом класса

Вид на главный фасад

 

 

 

   
 Проект таунхаусов эконом класса

Боковой фасад

 

  Проект таунхаусов эконом класса

Общий вид с высоты птичьего полета

 

Проект таунхаусов эконом класса

Внутренние дворики

 

   

 

 

 

 

 

 

 

 

 

 

 

 

 

 

Проект таунхаусов эконом класса

 

  Проект таунхаусов эконом класса

 

Проект таунхаусов эконом класса

 

Проект таунхаусов эконом класса

 

 

 

 

 

 

 

 

 

 

   

 


 

 

 
Проект таунхаусов эконом класса

Вариант объемно-композиционного решения

Проект таунхаусов эконом класса

 

 

Проект таунхаусов эконом класса

Вариант объемно-композиционного решения

Проект таунхаусов эконом класса

 

   



 

 

Проект виллы, коттедж, малоэтажный дом, таунхаусы, проект таунхаусов, проект поселка, проект дома, проект усадьбы, поселок, проектирование поселков, проектирование коттеджных поселков, малоэтажное проектирование, проектирование загородных домов, проектирование загородного жилья, проект рабочий, эскизный проект, архитектурный проект коттеджа, архитектурный проект поселка, архитектурный проект таунхауса, архитектурный проект офисного здания, архитектурный проект жилого дома, архитектурный проект виллы, проект мини гостиницы, проект гостиницы, проект микрорайона, проект многофункционального комплекса.

 

 

 

 

 

 

 

НА ГЛАВНУЮ СТРАНИЦУ