ПРЕДПРОЕКТНОЕ  ПРЕДЛОЖЕНИЕ  МНОГОФУНКЦИОНАЛЬНОГО  КОМПЛЕКСА  В ПОДМОСКОВЬЕ   (2017 г.)  

Архитектор:  Шернин М.Д.




        ОБЩАЯ ПОЯСНИТЕЛЬНАЯ ЗАПИСКА:
Требовалось выполнить проект реконструкции дуплексов, предназначенных для кратковременного
пребывания отдыхающих. Изначальный вариант не предусматривал места под установку электрокотла и был тесен, в частности общая комната слишком мала, отсутствовал тамбур.


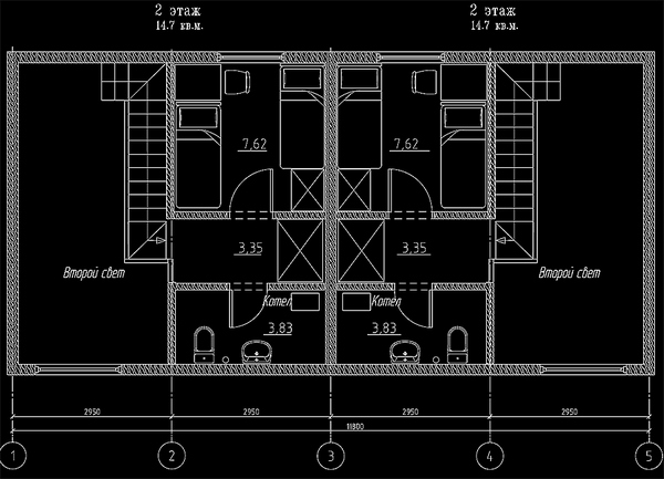
Варианты планировки предусматривают расширение внутреннего пространства за счет террасы.
На пространство террасы переносится тамбур и санузел. Под наклонной кровлей, ближе к центральной части
формируется второй уровень, где размещается спальня и второй санузел. В результате переезда
одной спальни на антресоли, на первом этаже формируется просторная гостиная с кухней, где с комфортом
размещаются семьи отдыхающих. Появление второго санузла существенно повышает качество проживания
семей на отдыхе. Между корпусами дуплексов формируются продолжения террас (вместо сквозных проходов),
что позволяет вывести половину террас на второстепенный фасад, обращенный к лесу.
Для удобства эксплуатации террас, из пространства гостиной-кухни делаются дополнительные выходы.
 



Существующие постройки.

 


   
   
   
 

ВАРИАНТ 1 РЕКОНСТРУКЦИИ

 

Проект дуплекса

Общий вид главного фасада

 

Проект дуплекса эконом класса

Общий вид сбоку

 

Проект дуплекса эконом класса

Задний фасад

 

Проект дуплекса эконом класса

Общий вид

 

Проект дуплекса эконом класса

Общий вид

 

 
 
 
Проект дуплекса эконом класса

Главный фасад

Проект дуплекса эконом класса

Задний фасад

 

Проект дуплекса эконом класса

Боковой фасад

Вариант планировки 1

 

 
 
 

 

 

 
 
ВАРИАНТ 2 РЕКОНСТРУКЦИИ

Данный вариант предполагает минимальные вложения. В частности габариты внешних стен остаются неизменными. Форма санузла меняется на Г-образную, чтобы появилась возможность разместить небольшой тамбур. Котел переносится в подстропильное пространство, доступ к нему осуществляется через люк. На главном фасаде появляются декоративные элементы, структурирующие объем над террасой и взаимоувязывающие смещенные (относительно входа) ступени и входную дверь. По оси террасы запроектирована стенка, разделяющая две половины дуплекса, и также служащая опорой для перил.
На противоположном фасаде монтируется консольная конструкция, являющаяся основой для въющихся растений, которые, в свою очередь существенно обогащают лапидарный фасад, обращенный к лесу. Кроме этого, данная конструкция подерживает большие выносы кровли и цветочные лотки под окнами первого этажа. Цветение растений непосредственно под окнами первого этажа, создает плановость восприятия природных форм изнутри помещений.

 

 

   
   
Проект дуплекса эконом класса

Общий вид

 

 
Проект дуплекса эконом класса

Общий вид

 

 

Проект дуплекса эконом класса

Общий вид

Проект дуплекса эконом класса

Общий вид заднего фасада

 

Проект дуплекса эконом класса

Общий вид заднего фасада

Проект дуплекса эконом класса

Главный фасад

Проект дуплекса эконом класса

Задний фасад

 

   
   
   
 
 
 Проект виллы, коттедж, малоэтажный дом, таунхаусы, проект таунхаусов, проект поселка, проект дома, проект усадьбы, поселок, проектирование поселков, проектирование коттеджных поселков, малоэтажное проектирование, проектирование загородных домов, проектирование загородного жилья, проект рабочий, эскизный проект, архитектурный проект коттеджа, архитектурный проект поселка, архитектурный проект таунхауса, архитектурный проект офисного здания, архитектурный проект жилого дома, архитектурный проект виллы, проект мини гостиницы, проект гостиницы. Проект таунхаусов, дуплексов.

 

 

 

 

 

 

 

 

НА ГЛАВНУЮ СТРАНИЦУ