ПРОЕКТ  ВЪЕЗДНОЙ ГРУППЫ  В ПОДМОСКОВЬЕ  (2013 г.)  

Архитектор:  Шернин М.Д.



 

Требовалось разработать проект въездной группы для небольшого поселка коттеджей под названием «Иллюзион». Общая площадь – около 120 кв.м. В охранной зоне лесного массива будет расположена гостевая (офисная) автостоянка на 14 мест.

Проект предлагает разместить на участке небольшое, двухэтажное здание, включающее в себя:

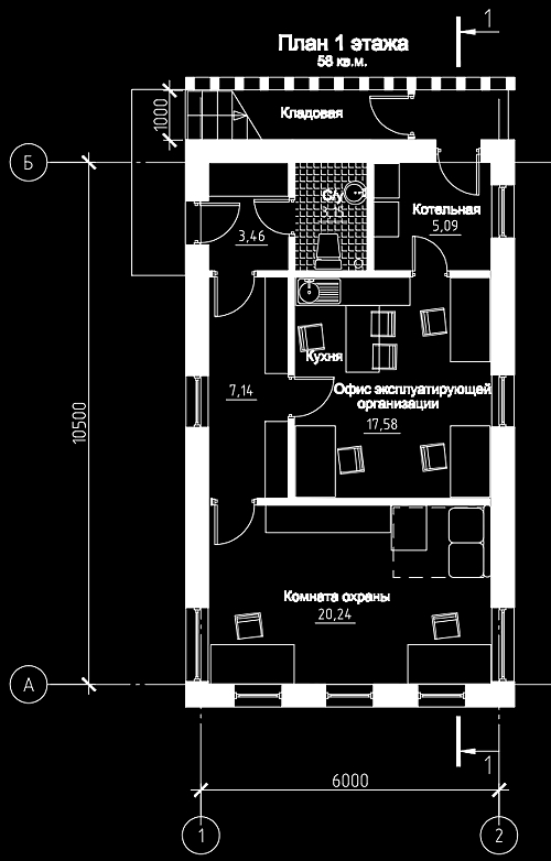
1 этаж -  пункт охраны, котельную, санузел, офисное помещение с кухонной мойкой.

2 этаж – санузел,  офис продаж с небольшой кухней.

Кровля эксплуатируемая, здесь же предполагается возведение небольшого помещения для хранения инвентаря..

Лестница на второй этаж и на кровлю сделана наружной под крышей, что позволяет не отапливать лишний объем и не приносит неудобств в связи с небольшим количеством работников на 2 этаже.

Поскольку предлагаемый к застройке участок довольно большой, в дальнейшем возможно размещение на нем спортивной площадки и домика для переодевания, что позволит проводить спортивные мероприятия сторонним группам людей.

Стилистическое решение фасадов здания можно охарактеризовать как «экологичный хайтек». Основная площадь фасадов облицована деревянными, вертикальными рейками, передняя часть первого этажа в зоне окон закрыта стеклянными, поворотными панелями с нанесенным на них прозрачным рисунком на «зеленую» тему. Данный прием собирает воедино эту часть фасада и не мешает визуальному контролю над входящими.

Для отображения в архитектуре названия поселка - предлагается выполнить надпись «Иллюзион» в двух видах. Для восприятия с дальних точек предназначена стенная надпись, размещенная между фасадных планок. Она исчезает по мере приближения к границе поселка и одновременно открывается вторая надпись, размещенная на вертикальных, стеклянных пилонах, она не видна с дальних точек .

Здание предполагается возвести на монолитном ленточном фундаменте с перекрытиями из сборных плит. Стены из теплой керамики 440 мм. Отделка из дерева.

 

ТЕХНИКО-ЭКОНОМИЧЕСКИЕ ПОКАЗАТЕЛИ:  


Площадь застройки – 91  кв.м.

Общая площадь здания – 116 кв.м.

Площадь эксплуатируемой кровли - 55 кв.м.


Строительный объем здания –570 куб.м.


Проект въездной группы поселка "Иллюзион" в Подмосковье (2013г.)
   
Проект въездной группы поселка "Иллюзион" в Подмосковье (2013г.)

Общий вид снаружи

 

 

 
Проект въездной группы поселка "Иллюзион" в Подмосковье (2013г.)

Вид с парковки

 

Проект въездной группы поселка "Иллюзион" в Подмосковье (2013г.)

Вид основной

 

 

Проект въездной группы поселка "Иллюзион" в Подмосковье (2013г.)

Общий вид

 

 

Проект въезда поселка "Иллюзион" в Подмосковье (2013г.)

Общий вид снаружи

 

 

 
Проект въезда поселка "Иллюзион" в Подмосковье (2013г.)

Вид с высоты полета шмеля

 

Проект въезда поселка "Иллюзион" в Подмосковье (2013г.)

Вид с высоты полета голубя

Проект въездной группы поселка "Иллюзион" в Подмосковье (2013г.)

Главный фасад

 

Проект въездной группы поселка "Иллюзион" в Подмосковье (2013г.)

Фасад поселковый

 
 
Проект въездной группы поселка "Иллюзион" в Подмосковье (2013г.)

Боковой фасад

 

Проект въездной группы поселка "Иллюзион" в Подмосковье (2013г.)

Боковой фасад

Проект въездной группы  в Подмосковье (2013г.)

Вариант решения декоративной стенки лестницы

 

Проект въездной группы  в Подмосковье (2013г.)

Вариант решения декоративной стенки лестницы

 

 

 

 

 

 

 

 

 

 

 

 

 

Участок под застройку

 

 

 

 
 

 

 

 

 

 

 
   
   
   
   
   
   
 
 
 Проект виллы, коттедж, малоэтажный дом, таунхаусы, проект таунхаусов, проект поселка, проект дома, проект усадьбы, поселок, проектирование поселков, проектирование коттеджных поселков, малоэтажное проектирование, проектирование загородных домов, проектирование загородного жилья, проект рабочий, эскизный проект, архитектурный проект коттеджа, архитектурный проект поселка, архитектурный проект таунхауса, архитектурный проект офисного здания, архитектурный проект жилого дома, архитектурный проект виллы, проект мини гостиницы, проект гостиницы. Проект таунхаусов, дуплексов.

 

 

 

 

 

 

 

 

НА ГЛАВНУЮ СТРАНИЦУ