ПРОЕКТ  ТАУНХАУСОВ НА ДАЛЬНЕМ ВОСТОКЕ  (2015 г.)  

Архитектор:  Шернин М.Д.


ПОЯСНИТЕЛЬНАЯ ЗАПИСКА:

Индивидуальный жилой дом представляет собой отдельно стоящее здание, расчитанное на проживание трех семей усредненного состава. Каждый жилой блок максимально автономен, оборудован отдельной котельной, кухней и набором жилых помещенй.
Первый этаж включает в себя тамбур, санузел, гостиную совмещенную с кухней, прихожую и котельную с отдельным входом с улицы. Высота 1 этажа составляет 3.600 метров (от пола до пола).
На втором этаже находятся по две жилые комнаты , ванная комната и постирочная на каждый блок.
На мансардном этаже каждого блока находятся по 2 жилых комнаты и по 1 санузлу и сауне на каждый блок. Одна из жилых комнат может быть проходной или отдельной.
Конструктивная схема здания - несущие стены из блоков со сборными ж/б перекрытиями и армопоясами под плитами перекрытий. Лестницы - металлические со ступенями из дерева и зашивкой ГКЛ. Наружные стены из теплой керамики 440 мм. , снаружи отделаны штукатуркой. Кладку армировать сеткой через 2 ряда. Предусмотреть в верхней части перегородок и наружных стен - компенсационный шов 30 мм., который заполнить трубками "Вилатерм", либо подобным материалом. Перегородки выполнить из кирпича на первом и втором этаже, на мансарде перегородки каркасные с заполнением звукоизолирующими матами, Кладку перегородок первого этажа армировать сеткой через 4 ряда. В местах примыкания перегородок к наружной стене - выполнить перевязку кладки. Верх перегородок фиксировать к перекрытию посредством засверливания и забивания арматуры. Окна с двухкамерными стеклопакетами и клапанами для проветривания.
Кровли скатные, неэксплуатируемые с наружным водостоком. Козырек над входами, ограждения лестниц выполняются по индивидуальному проекту. Вентиляционные трубы запроектированы из ПВХ (типа BRAAS ).
Вокруг плиты фундамента выполнить кольцевой дренаж с обустройством ревизионных колодцев по углам здания. Отвод воды осуществлять в ливненую канализацию, либо в более нижние (дренирующие) слои грунта.


ОСНОВНЫЕ ТЕХНИКО-ЭКОНОМИЧЕСКИЕ ПОКАЗАТЕЛИ
1. Общая площадь помещений ................................ ..................543 кв.м
- блок 1 ...............................................................................181 кв.м.
- блок 2 .................................................................................181 кв.м.
- блок 3 ...............................................................................181 кв.м.
3. Площадь застройки .......................................................297 м2
4. Строительный объем ..................................................................2250



   
   
 
 
Проект таунхаусов

Общий вид с высоты полета

 

Проект таунхаусов

Общий вид с высоты полета

 

 

Проект таунхаусов на 3 семьи

Общий вид

 

 

Проект таунхаусов на 3 семьи

Общий вид

 

 

 
Проект таунхаусов на 3 семьи заказать проект

Общий вид , вариант отделки

 

Проект таунхаусов на 3 семьи заказать проект

Общий вид , вариант отделки

 

Проект таунхаусов на 3 семьи заказать проект

Общий вид , вариант отделки

 

Проект таунхаусов на 3 семьи заказать проект

Общий вид , вариант отделки

 

 

 

 

 
 
Проект таунхаусов на 3 семьи заказать проект

Схема генплана

 

Проект таунхаусов на 3 семьи заказать проект

Главный  фасад

 

 

Проект таунхаусов на 3 семьи заказать проект

Дворовый  фасад

   
   
 
 

 

Проект таунхаусов на 3 семьи заказать проект

Боковой фасад

Проект таунхаусов на 3 семьи заказать проект

Боковой фасад

 

Проект таунхаусов на 3 семьи заказать проект

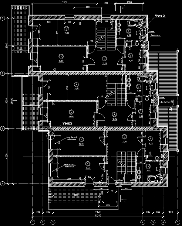
План 1 этажа

 

Проект таунхаусов на 3 семьи заказать проект

План 2 этажа

 

 
 

 

 

Проект таунхаусов на 3 семьи заказать проект

План 3 этажа

 

План раскладки плит перекрытия

 

 

Проект таунхаусов на 3 семьи заказать проект

Разрез

 

В процессе строительства 2015-16 г.

 

 

В процессе строительства 2015-16 г.

 

В процессе строительства 2015-16 г.

 

 

В процессе строительства 2015-16 г.

 

 

 

Перепланировка южной секции таунхаусов. Покупатель высказал пожелание разместить на  1 этаже пожилого родственника, оборудовать отдельный вход , санузел и спальню. Также требовалось предусмотреть мини-кухню. На 2 и 3 этажах будет проживать семья из 5 человек, для них обустроено общее пространство гостиной-кухни на 2 этаже, предусмотрен санузел и просторный гардероб. Третий этаж является приватной зоной. Небольшая спальня родителей имеет собственный санузел, а дети располагаются в большой комнате , разделенной перегородками на индивидуальные зоны, что позволяет достичь приватности в одной комнате.

План 1 этажа

 

   

План 2 этажа

 

План 3 этажа

 

 Проект виллы, коттедж, малоэтажный дом, таунхаусы, проект таунхаусов, проект поселка, проект дома, проект усадьбы, поселок, проектирование поселков, проектирование коттеджных поселков, малоэтажное проектирование, проектирование загородных домов, проектирование загородного жилья, проект рабочий, эскизный проект, архитектурный проект коттеджа, архитектурный проект поселка, архитектурный проект таунхауса, архитектурный проект офисного здания, архитектурный проект жилого дома, архитектурный проект виллы, проект мини гостиницы, проект гостиницы. Проект таунхаусов, дуплексов.

 

 

 

 

 

 

 

 

НА ГЛАВНУЮ СТРАНИЦУ